募集科目
内科
皮膚科
小児科
耳鼻咽喉科
整形外科
精神科
眼科
脳神経外科
皮膚科
小児科
耳鼻咽喉科
整形外科
精神科
眼科
脳神経外科
物件概要
| 物件No. | FP-004 |
| 所在地 | 〒659-0095 兵庫県芦屋市芦屋町9-4 |
| 駐車場 | 専用3台 |
| 施工時期 | 2026年10月竣工予定 |
| アクセス | 阪急芦屋川駅徒歩4分 |
| 賃料 | ※お問い合わせください。 |
| 共益費 | ※お問い合わせください。 |
| 保証金 | ※お問い合わせください。 |
| 引渡 | スケルトン |
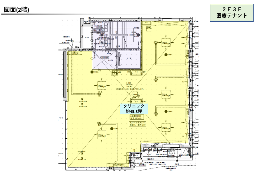
物件図面
- 1F 医療テナント1図面
- 2F3F医療テナント
※クリックで拡大画像が表示されます。
| 募集区画 | 2F: 45.8坪 3F: 45.8坪 |
周辺環境
- 周辺地図
- 周辺写真
- 周辺写真2
※クリックで拡大画像が表示されます。
おすすめPOINT
✔ 阪急芦屋川駅徒歩4分
✔ 閑静な住宅街に中
地図
ストリートビュー
お問い合わせ
物件に関する詳細は、下記フォームよりお問い合わせください。














