募集科目
内科
皮膚科
小児科
耳鼻咽喉科
整形外科
精神科
脳神経外科
その他科目
皮膚科
小児科
耳鼻咽喉科
整形外科
精神科
脳神経外科
その他科目
物件概要
| 物件No. | FP-011 |
| 所在地 | 〒599-8241 大阪府堺市中区福田484-20 |
| 駐車場 | 無料駐車場約30台付 |
| 施工時期 | 2026年冬入居が可能 |
| アクセス | 南海バス「福町停」徒歩5分 |
| 賃料 | ※お問い合わせください。 |
| 共益費 | ※お問い合わせください。 |
| 保証金 | ※お問い合わせください。 |
| 引渡 | スケルトン |
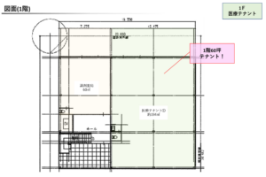
物件図面
- 図面(1階)
- 1F医療テナント
※クリックで拡大画像が表示されます。
| 募集区画 | 医療テナント①: 約60坪 医療テナント②: 約80坪 (眼科内定) |
周辺環境
- 物件予定地
- 物件予定地2
- 物件予定地3
- 物件予定地4
※クリックで拡大画像が表示されます。
おすすめPOINT
✔ 半径1キロ人口2万人強
✔ スーパー跡地のため、地域の認知度が高い
地図
ストリートビュー
お問い合わせ
物件に関する詳細は、下記フォームよりお問い合わせください。















