募集科目
内科
小児科
耳鼻咽喉科
眼科
整形外科
泌尿器科
皮膚科
精神科
その他科目
小児科
耳鼻咽喉科
眼科
整形外科
泌尿器科
皮膚科
精神科
その他科目
物件概要
| 物件No. | FP-002 |
| 所在地 | 〒580-0032 大阪府松原市天美南7-61 |
| 駐車場 | 近隣パーキングチケット発券(予定) |
| 施工時期 | 未定 ※開院時期相談可(2027年春以降開院可能) |
| アクセス | 近鉄河内天美駅 徒歩1分 |
| 賃料 | ※お問い合わせください。 |
| 共益費 | ※お問い合わせください。 |
| 保証金 | ※お問い合わせください。 |
| 引渡 | スケルトン |
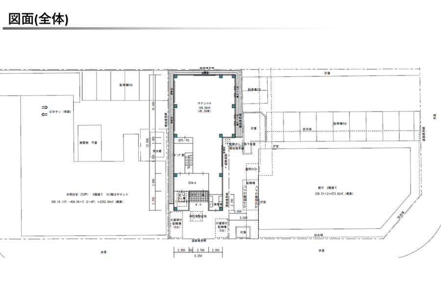
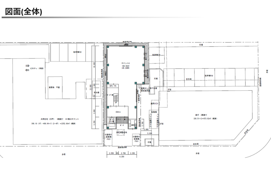
物件図面
- 図面(全体)
- 図面(1階)
- 図面(内科プランニング案)
- 図面(2-4階)
- 図面(内科プランニング案)
※クリックで拡大画像が表示されます。
| 募集区画 | 1F: 約45坪 坪数分割相談可能 2F: 約53坪 坪数分割相談可能 3F: 約53坪 坪数分割相談可能 4F: 約53坪 坪数分割相談可能 |
周辺環境
- 物件予定地
- 物件予定地2
- 物件予定地3
- 近鉄 河内天美駅
- 近隣 スーパーマーケット・コンビニ
- 駅から当該物件をみて
- 近隣マンション
- 大型商業施設
- 松原徳洲会病院
※クリックで拡大画像が表示されます。
おすすめPOINT
✔ 駅前ロータリーからの視認性◎
✔ 競合が少ない立地
✔ 駅ロータリー沿いにスーパー、金融機関多数
✔ 大阪市内、堺市等からのアクセスも良いエリア
✔ 主要高速道路が複数乗り入れ、近鉄阿部野橋から電車で13分
✔ 堺北花田イオン車8分
地図
ストリートビュー
お問い合わせ
物件に関する詳細は、下記フォームよりお問い合わせください。























